707709 | Venta Casa Pasillo 3 Dormitorios... | BuscadorProp
🔍

¡Buscamos por vos! ¡Tu búsqueda a todas las inmobiliarias!

¡Quiero probarlo!

compartir Compartir:

  • facebook
  • whatsapp
  • envelope
  • link
Quitar la propiedad de favoritos Guardá tu propiedad favorita

Casa en Venta en Rosario

direccion Brown Al 2700, Rosario
direccion Ver en mapa
Venta
USD 295.000
Sin expensas
casas Casas
4 Ambientes
3 dormitorios
1 toilette
1 baño
Superficie total 223m2
Superficie cubierta 154m2
2 pisos
Disposición Interno
Orientación Este

Venta Casa Pasillo 3 Dormitorios Reciclado De Autor. Pichincha

Venta Casa de Pasillo 3 Dormitorios Piscina. No PH. Pichincha

Ubicación privilegiada de la ciudad, sobre calle Brown, entre las calles Ovidio Lagos y Callao, en Barrio Pichincha. Rodeado de propuestas gastronómica, comercial y cultural, con proximidad a áreas verdes de descanso pero sin alejarse del ritmo urbano. También cercano a varias lineas de transporte con excelente conectividad ofreciendo practicidad y calidad de vida. 

En el pasillo hay 6 unidades. Esta pertenece a la Unidad 4. No PH.

Esta casa completamente a estrenar nos trae una propuesta moderna y una organización funcional.

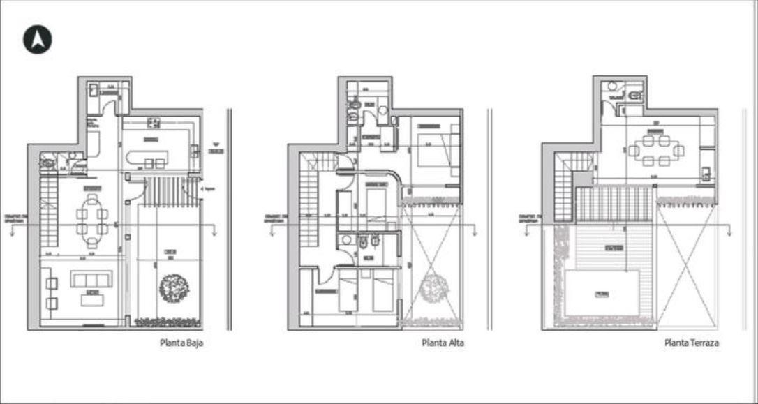
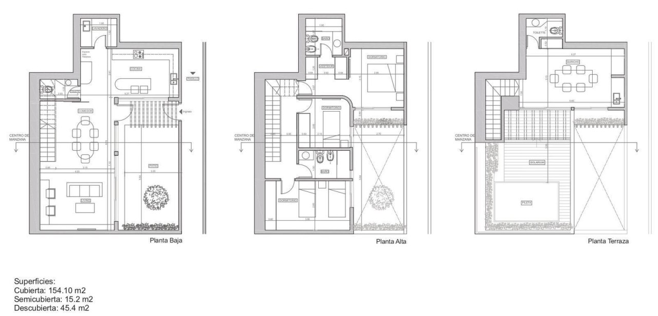
PLANTA BAJA
Patio de ingreso, al acceder nos encontramos con un espacio verde que recibe luz natural y aire libre.
Cuenta con una cocina con isla que se presenta como un ambiente independiente y funcional.
Estar comedor amplio, siendo un espacio confortable y de disfrute.
También cuenta con un toilette, y lavadero independiente con acceso desde la cocina.

PLANTA ALTA
Dormitorio suite, ofreciendo de este modo comodidad y privacidad.
Dos dormitorios equipados con placares empotrados de estilo moderno y amplia capacidad de guardado, estos espacios comparten un baño completo de uso común.
Detalles y terminaciones Importantes: los baños fueron diseñados con revestimientos, griferías y sanitarios de alta calidad, priorizando la durabilidad y el diseño.

TERRAZA
Cuenta con un quincho amplio y un espacio equipado con parrilla, mesada con bacha y lugar suficiente para colocar una gran mesa, ideal para reuniones.
Solarium y piscina: este espacio invita a relajarse y disfrutar en la privacidad de tu hogar. Descanso, reuniones y actividad social.

La casa fue construida desde sus cimientos.
ESPECIFICACIONES CONSTRUCTIVAS: estructura de Hormigón Armado, mampostería en ladrillos. Terminaciones en yesería y/o placas en paredes, y cielorraso suspendido de durlock.

ABERTURAS Cerramientos de Aluminio de alta prestación. Vidrios de DVH (doble vidriado hermético, sujeto a modelo de ventana).

PUERTAS Puerta de ingreso de seguridad. Puertas interiores de alta prestación con marcos y hoja de WPC.

PISOS Y REVESTIMIENTOS Pisos de Porcelanato, revestimientos y zócalos EPS de primera línea.

CLIMATIZACIÓN Se prevé la pre instalación de aires acondicionados. Se prevé la pre instalación de radiadores e instalación de Caldera.

MOBILIARIO DE COCINA Alacena y bajo mesada de diseño con iluminación en mobiliario. Mesada de Silestone o similar calidad. Bacha de acero inoxidable con griferías de primera línea. Espacio disponible para purificador y/o extractor de cocina. Horno eléctrico y anafe a gas embutido.

DORMITORIOS Y BAÑOS Placares completos con frentes corredizos o de abrir. Diseño interior con estantes, cajones y barrales. Los baños cuentan con mampara en sus duchas, vanitory completo y espejos. Sanitarios y griferías de primera marca.

JARDÍN Y TERRAZA Jardín con intervención de paisajismo en Planta Baja. En la última planta, Quincho con espacio para parrilla, mesada con bacha y toilette. En el exterior se ubica una pérgola, la pileta y un solárium con intervención de canteros y verde.

SERVICIOS Medidor de agua independiente, tablero eléctrico independiente y servicio de Litoral Gas habilitado. Climatización y agua caliente prevista por caldera.

DOMOTICA Central de control: pantalla táctil para controlar luces, acondicionamiento, cámaras de seguridad, portero, sensores, entre otros. Diseñado en función a cada proyecto. Integración de comando por voz, tipo Alexa o Google assistant. Sistema de iluminación interior y exterior: circuitos de iluminación on/off independientes. Cámaras se seguridad y sensores: diseñadas en función al proyecto. Frente de portero con cámara.

Comodidades Comodidades

  • pileta

    Con pileta

  • parrilla

    Con parrilla

  • patio

    Con patio

  • mascota

    Acepta mascotas

  • wifi

    Wifi

  • calefaccion

    Calefacción

  • solarium

    Solarium

Ver todaschevron-down
Ver menoschevron-up

Ubicación Ubicación

direccion Brown Al 2700, Rosario
  • codigo
    Código de la propiedad: EHO7813625
  • aviso
    Reportar aviso

¿Querés reportar algún problema con este aviso?

Seleccioná el motivo:

cerrar

Contactar a la inmobiliaria

Contactar a la inmobiliaria Cerrar modal

Eigen Propiedades

Venta Casa Pasillo 3 Dormitorios Reciclado De Autor. Pichincha

Propiedad