676248 | Casa en Barrio Costa Esmeralda -... | BuscadorProp
🔍

¡Buscamos por vos! ¡Tu búsqueda a todas las inmobiliarias!

¡Quiero probarlo!

compartir Compartir:

  • facebook
  • whatsapp
  • envelope
  • link
Quitar la propiedad de favoritos Guardá tu propiedad favorita

Casa en Venta en Costa Esmeralda

direccion Senderos Iii, Costa Esmeralda
direccion Ver en mapa
Venta
USD 340.000
+ $ 245.000 expensas
casas Casas
5 Ambientes
4 dormitorios
4 baños
2 cocheras
Superficie total 213m2
Superficie cubierta 270m2
2 pisos
Orientación Oeste

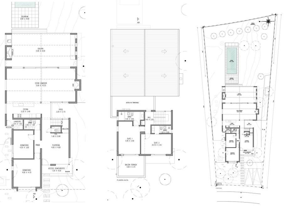
Casa en Barrio Costa Esmeralda

• 5 ambientes (4 dorm, 1 estar, 1 living comedor)

Planta Baja

Hall/Estar TV, Toilette de recepción , living Comedor con cocina integrada, amplia galería con parrilla, lavadero, piscina.

Dos dormitorios, baño completo.

Planta Alta

2 Suites, 1 con terraza balcón.

SUPERFICIES

Terreno 902.05 m2

Terreno libre 690.94 m2

Construido (100%)

Superficie cubierta 213.77 m2

Superficie semicubierta 58.88 m2

Total 272.65 m2

Superficie espejo agua 24.00 m2

Características

• Construcción tradicional. Estructura de muros portantes ladrillo portante 18 cms. Fundada sobre bases de hormigón armado. Losa sobre planta baja de Losetas tipo cerbelú. Cubiertas con pendiente: estructura de madera miltilaminada y paneles doble cara de chapa duopanel de Aerolatina con cuerpo de espuma poliuretánica.

• Revestimiento exterior siding cementicio 8 mm vertical sobre bastidor pintado con Recuplast frentes.

• Calefacción por piso radiante eléctrico marca Arienclima, con termostatos individuales en cada ambiente

• Aires acondicionados splits instalados en dormitorios y estar comedor/cocina. Terraza de servicio para ubicación de unidades exteriores.

• Cañería para datos en ambas plantas.

• Alimentación de agua por tanque cisterna enterrado y bomba presurizadora, tanque de reserva elevado con bomba presurizadora de acuerdo a requerimientos CE.

• 2 calefones para agua caliente de consumo en planta baja y planta alta.

• Planta de tratamiento residuos cloacales de acuerdo a requerimientos de Costa Esmeralda.

• Gas habilitado para alimentación de 2 calefones.

• Cerramientos de aluminio Aluar A30 color negro con DVH (doble vidriado hermético), ventanas oscilobatientes y carpinterías corredizas. DVH con laminado en puertas ventana.

• Pisos de porcerlanato simil madera en toda la casa, escalera terminada en microcemento

• Puertas de madera foliada marca Gromanti.

• Griferías FV Puelo monocomando, Espejos y accesorios en baños.

• Artefactos sanitarios Piazza Amalfi. Inodoros doble descarga y asiento cierre suave.

• Horno y anafe eléctrico marca Candy. Campana isla de acero inoxidable modelo TST Colhue

• Mesadas de madera de Euca laqueada transparente en cocina y lavadero. Mesadas microcemento en baños, mesada y banco galería.

• Muebles de cocina bajomesada y columna heladera/horno/escobero en melamina color Grafito.

• Mamparas en baños planta alta.

• Equipamiento interior y exterior.

• Artefactos de cocina y lavadero completo: heladera, lavavajilla y lavarropas.

• Artefactos de iluminación colocados.

• Parrilla revestida en ladrillos refractarios con herraje básico, mesada contigua con bacha.

• Parquizado con césped. Sistema de riego automático.

• Piscina 3.00 x8.00 con equipo completo de bomba, filtro e iluminación, solárium piso atérmico.

• 2 calefones con agua caliente ilimitada en baños y cocina
• Gas de red instalado (no garrafa)
• Internet WiFi instalado
• Piso radiante
• Aire frio calor en todos los ambientes
• Casa totalmente equipada, Muebles y Artefactos microondas, tostadora, cafetera, tv

En cumplimiento a la ley 5115, se informa que el inmueble no es accesible para personas con movilidad reducida o discapacidad física.



Corredor interviniente: Milagros Sarachaga CUCICBA 7799 Paolo Menghi CUCICBA 9171 CMCPDJLM 1005

La tasación, intermediación y la conclusión de las operaciones sobre esta propiedad son actividades exclusivas de este corredor matriculado, conforme las previsiones de la ley 20.266, la ley CABA 2340, la ley provincial 10.973 y sus modif. y las normas reglamentarias dictadas por los colegios departamentales.

Comodidades Comodidades

  • pileta

    Con pileta

  • parrilla

    Con parrilla

  • jardin

    Con jardin

  • mascota

    Acepta mascotas

  • wifi

    Wifi

  • balcon

    Con balcón

  • aireacondicionado

    Aire acondicionado

  • calefaccion

    Calefacción

Ver todaschevron-down
Ver menoschevron-up

Ubicación Ubicación

direccion Senderos Iii, Costa Esmeralda
  • codigo
    Código de la propiedad: RC340
  • aviso
    Reportar aviso

¿Querés reportar algún problema con este aviso?

Seleccioná el motivo:

cerrar

Contactar a la inmobiliaria

Contactar a la inmobiliaria Cerrar modal

Zipcode

Casa en Barrio Costa Esmeralda

Propiedad